《UPPF如何打造258平米空间门店形象升级的?》
近几年,门店设计装修在汽车后市场行业非常流行,尤其是合作知名品牌的旗舰店更为注重。有的崇尚简约高端,有的偏向潮流风尚的感觉。这次,小编和大家分享一组既有简约高端风格,又不失潮流的门店装修设计。
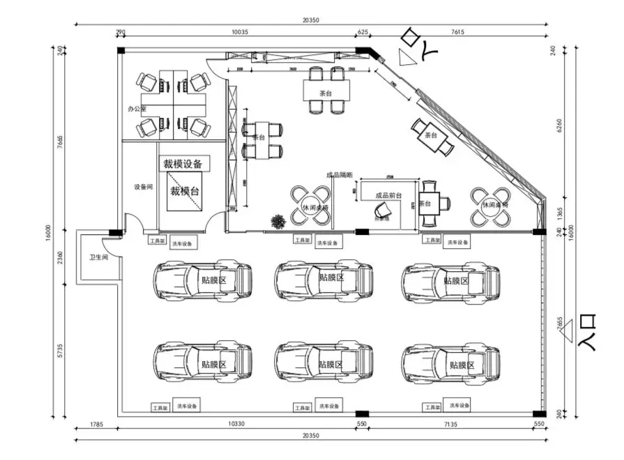
01 【 整体布局】
在这个面积为258平米的空间,我们根据客户提出的以“简约”为核心,在整体设计上体现的简约美十足,并在某些细节方面设计对于门店来说非常有益的巧妙地方。在颜色搭配、功能使用上都推崇了客户非常满意的设计方式,同时最大化利用空间,保证功能需求。从专业化角度对其设计,以满足车辆施工的高规格要求。



02 【 门头设计】
门头设计色彩上使用了高级灰,搭配凸出的品牌标志,实在的点睛之笔,由远而近看效果更佳,营造了一种隐隐约约的饱和感,加深用户对门店的第一印象。


03【 展示区域】
展示区域使用了UPPF标准展柜设计,体现了品牌的专业性和独特性,简约高端的风格设计与门店整体设计搭配非常贴合,展示区域与接待区结合,巧妙地将用户洽谈与体验产品功能融入一块,对门店与客户来说都是非常便利和有益的。



04 【 接待区域】
前台接待区与颜色非常统一,大面积的白色,视觉上给人感觉简约大气,极简的设计和两旁的功能区融合为一体,可谓是非常巧妙了!







05 【 车间设计】
车间设计以灰砖墙面为主打,显高档且不过时。标准的统一化的软膜灯箱
挡住顶棚上面的线管,整洁美观,凸显高端大气,不仅照亮整个施工车间为施工带来便利,更加进一步提升整体风格档次,整个施工车间呈现出冷调,无不暗示施工车间的神圣,我们对客户服务的重视,更好的环境才能有更好的服务。车间海报广告位和专业工具的摆放严苛到极致,歪一分显怠惰,偏一丝则突兀,每一处都彰显品牌文化,每个细节都切合主题,体现生命的活力,给客户带来极佳体验。




